JARON HUYSENTRUYT

Hollebeke

A sustainable housing project.

This project quadruples the number of inhabitants in the small Flemish town of Hollebeke. Using the waste heat from the multiple industrial processes using the chicory plant, these buildings enjoy comfortable temperatures all year. The solid brick construction uses all the positive properties of brick, including the great thermal capacity.

Location

Hollebeke, Belgium

Designed

2017

Hollebeke and the train.

Hollebeke is situated next to train tracks, but the station has been discontinued since 1982. With a new development, stretching along the train tracks, this small town becomes a vivid, evolving living environment again, including a new train stop and station.

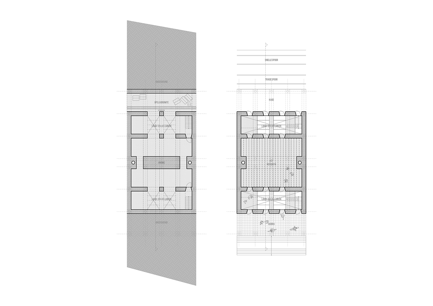
Industrial waste heat.

Using the traditional agricultural practices with chicory, this development enjoys all the positive effects the chicory industry has to offer. Located along the train tracks are the three main processes of chicory: the drying, the roasting and the processing of leftovers to animal feed. The residual heat of these processes is transported through a thick brick wall, parallel to the train tracks, heating the different buildings and houses. In the summer these processes are halted, because then the chicory is growing on the fields. Then these brick walls serve as heat sinks for the summer heat, maintaining a comfortable temperature inside.

Using the great thermal capacity of brick, these buildings are built according to the limits of this material.

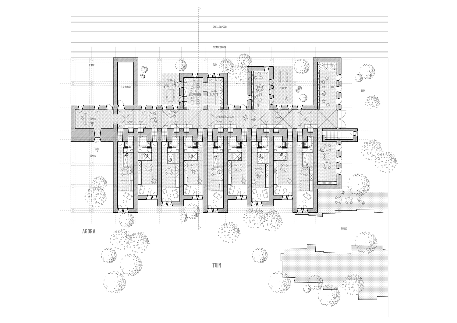
The walls are 80 cm thick, allowing the brick wall to maintain the necessary insulation standards as regular walls. The brick is exposed everywhere, allowing the bricks to control humidity and temperature. The openings are small and the rooms are covered in brick vaults. A big skylight in every house allows for a maximum of daylight in the house s main living room, while the other more private rooms are lighted with more subtle indirect light through the narrow windows.

Studio apartments

These apartments all enjoy both the heating wall and a personal patio or skylight. The shared living space on the other side of the wall also has enjoys these. This expansive and shared space acts as a social hub.

Train station

The train stops again in Hollebeke, at this train station. It uses the same qualities as the other buildings, a constant comfortable temperature and a large skylight for maximum daylight. It is located in the middle of the development, to ensure the train becomes a focus point in the new town.

More projects

Ieper, Belgium

j.huysentruyt@gmail.com