JARON HUYSENTRUYT

Bodega in Carinena

A new kind of winery.

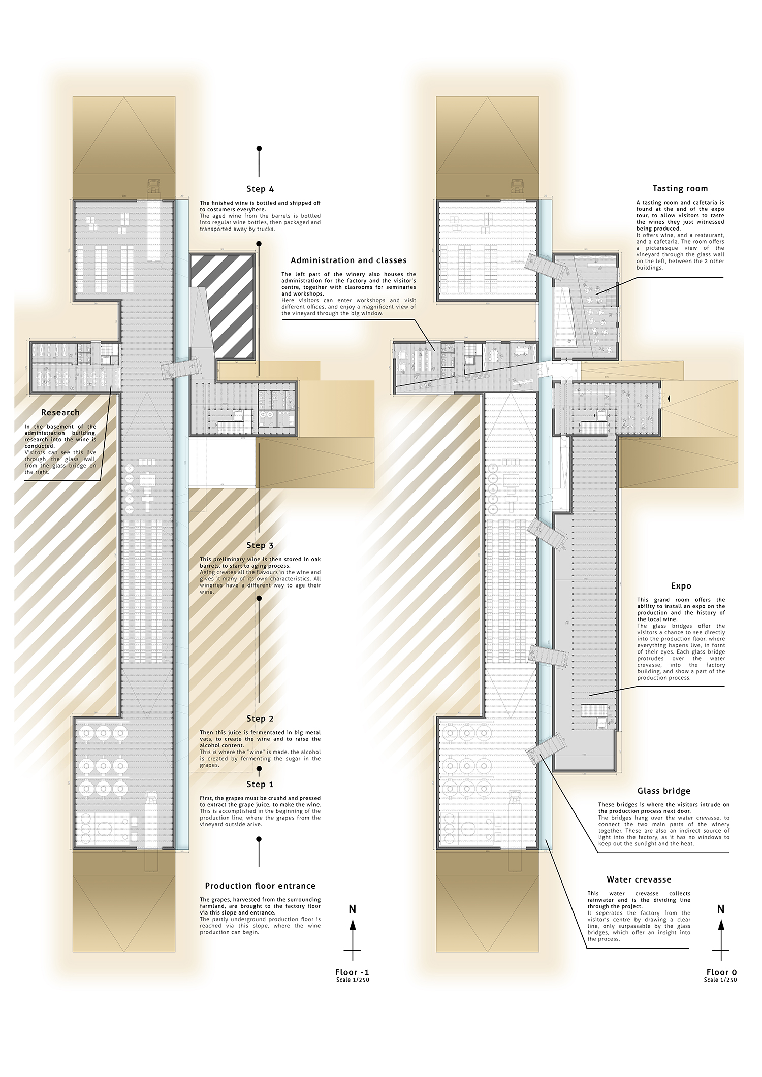
Carinena, a small Spanish city in the heart of Aragon, has the oldest protected wine production region in Europe. Here, a new kind of winery will combine the production process with tourists, visitors and wine enthousiasts. The production process and the visitor accomodation have been combined into a single winery: the different functions intrude into eachother through bridges and light tunnels, while seperated by a crevasse of water, located in the center of the winery. This crevasse divides the winery into two main parts: the bodega and the visitors.

Location

Carinena, Spain

Designed

2017

More projects

Ieper, Belgium

j.huysentruyt@gmail.com