JARON HUYSENTRUYT

Ghentian 2.0

An urban project that combines 5 new ways of temporal living, with 5 public functions that serve the citizens.

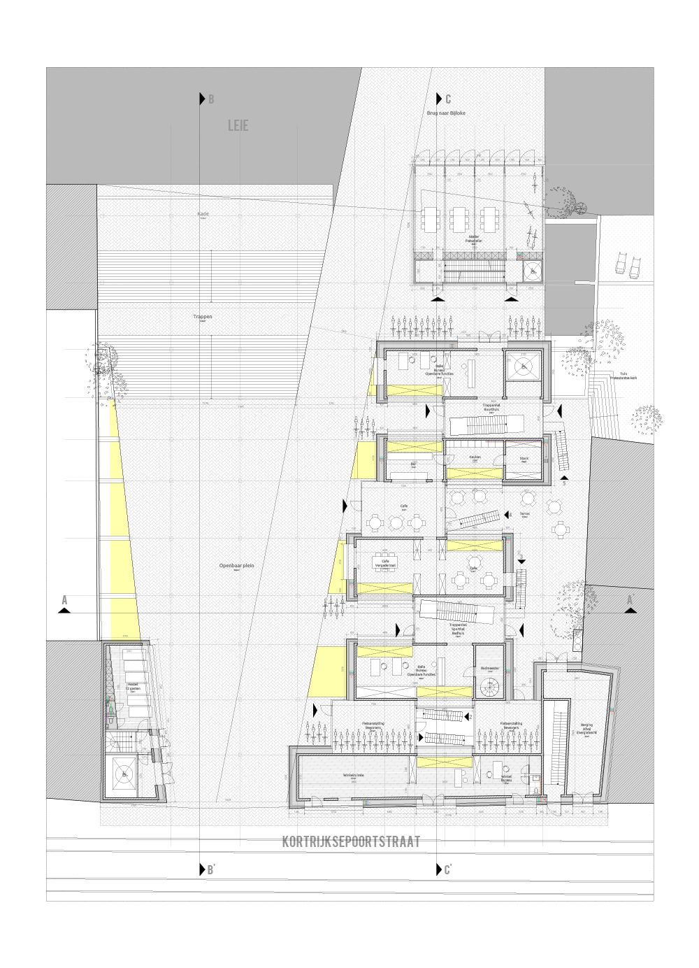
A large public space, a bath house, a sports center, a community center, public workshops and a library for tools and useful objects serve the inhabitants of these temporal living spaces and the neighbourhood surrounding them. Together they form an example of new urban living, a new durable city.

Location

Ghent, Belgium

Designed

2018

A small empty plot in the city centre of Ghent becomes a hotspot for a new way of city living: sharing many utilities and funcional places, together with qualitiative private spaces, serves as an example for the rest of the city.

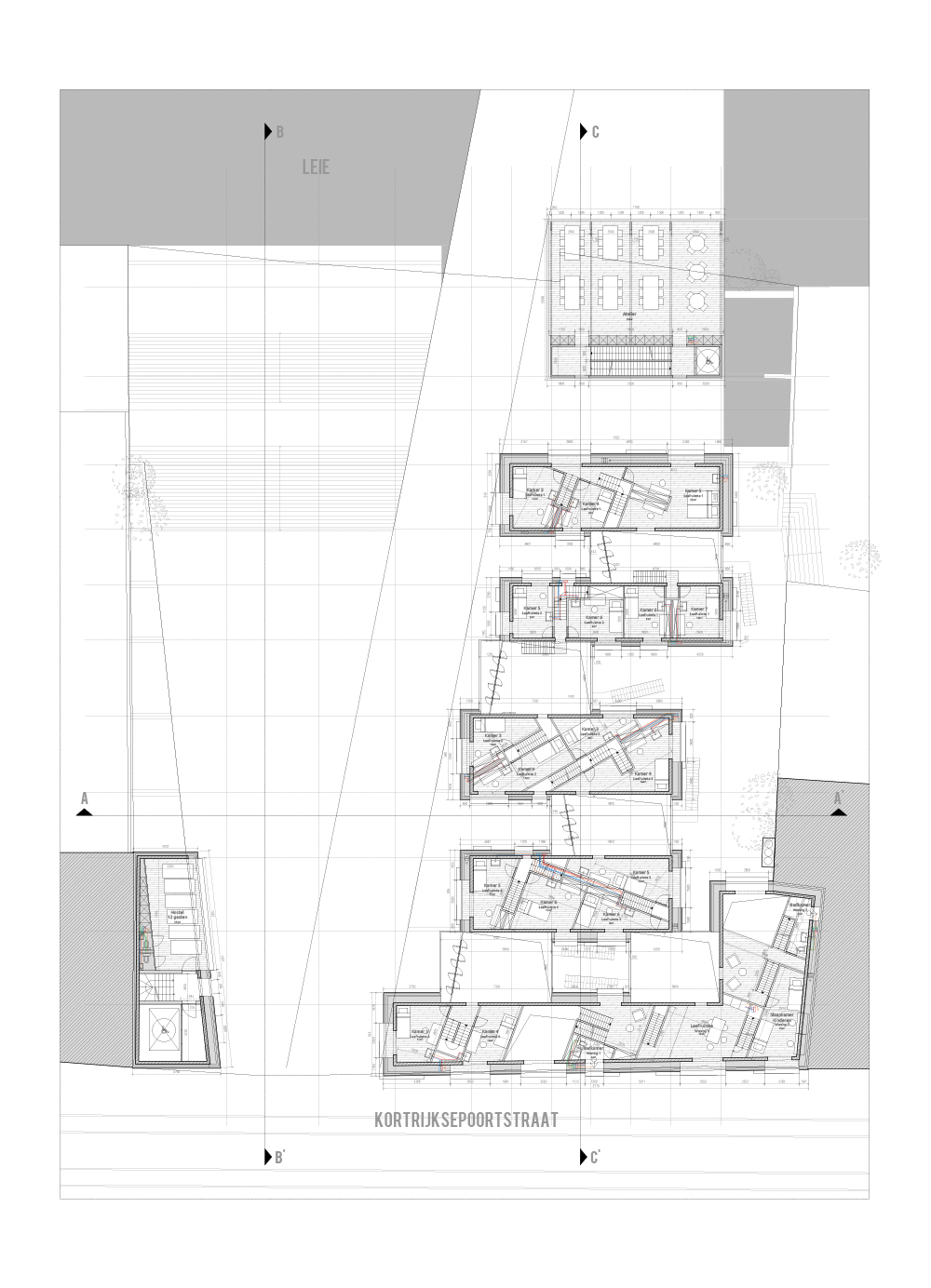
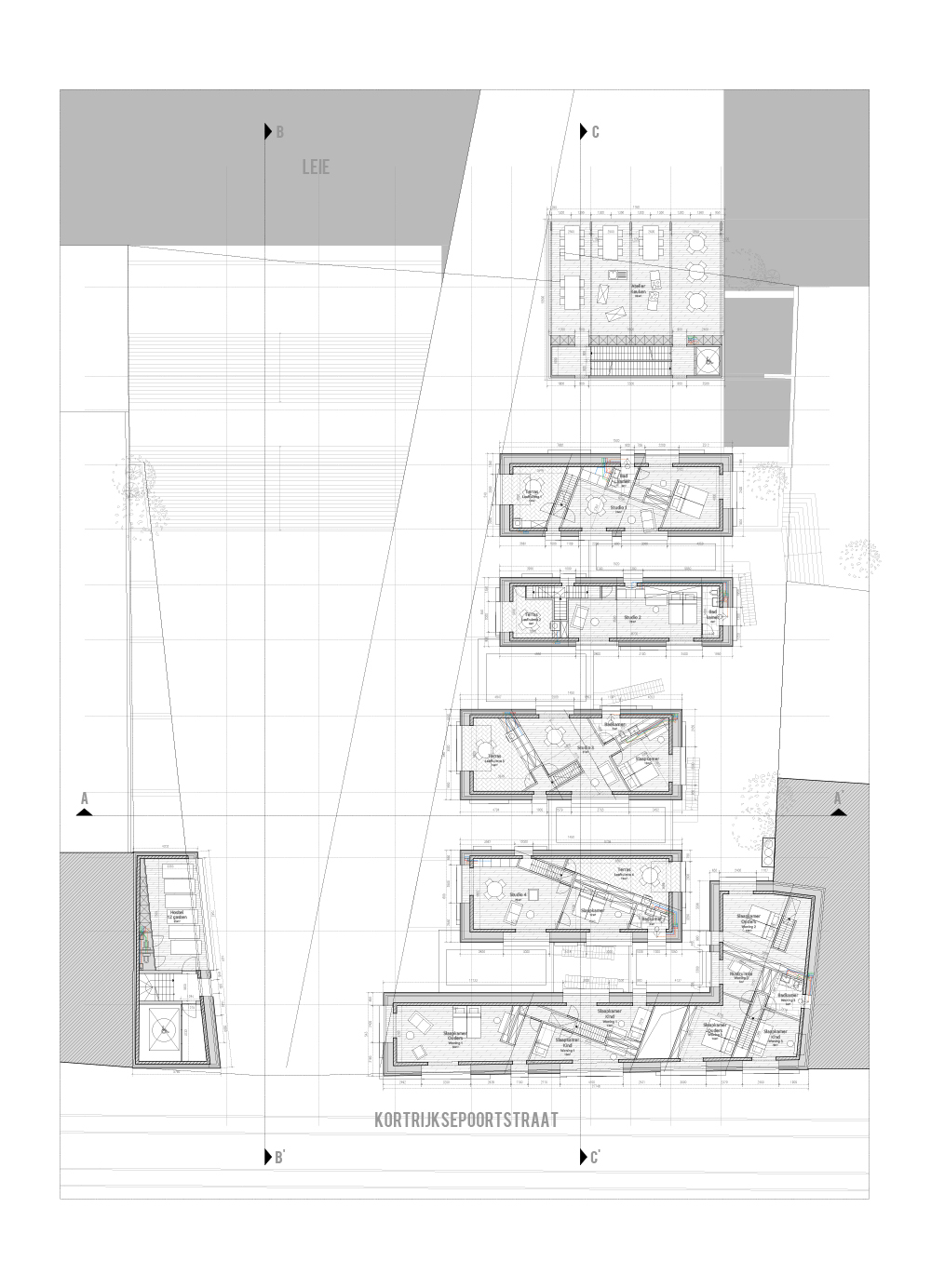
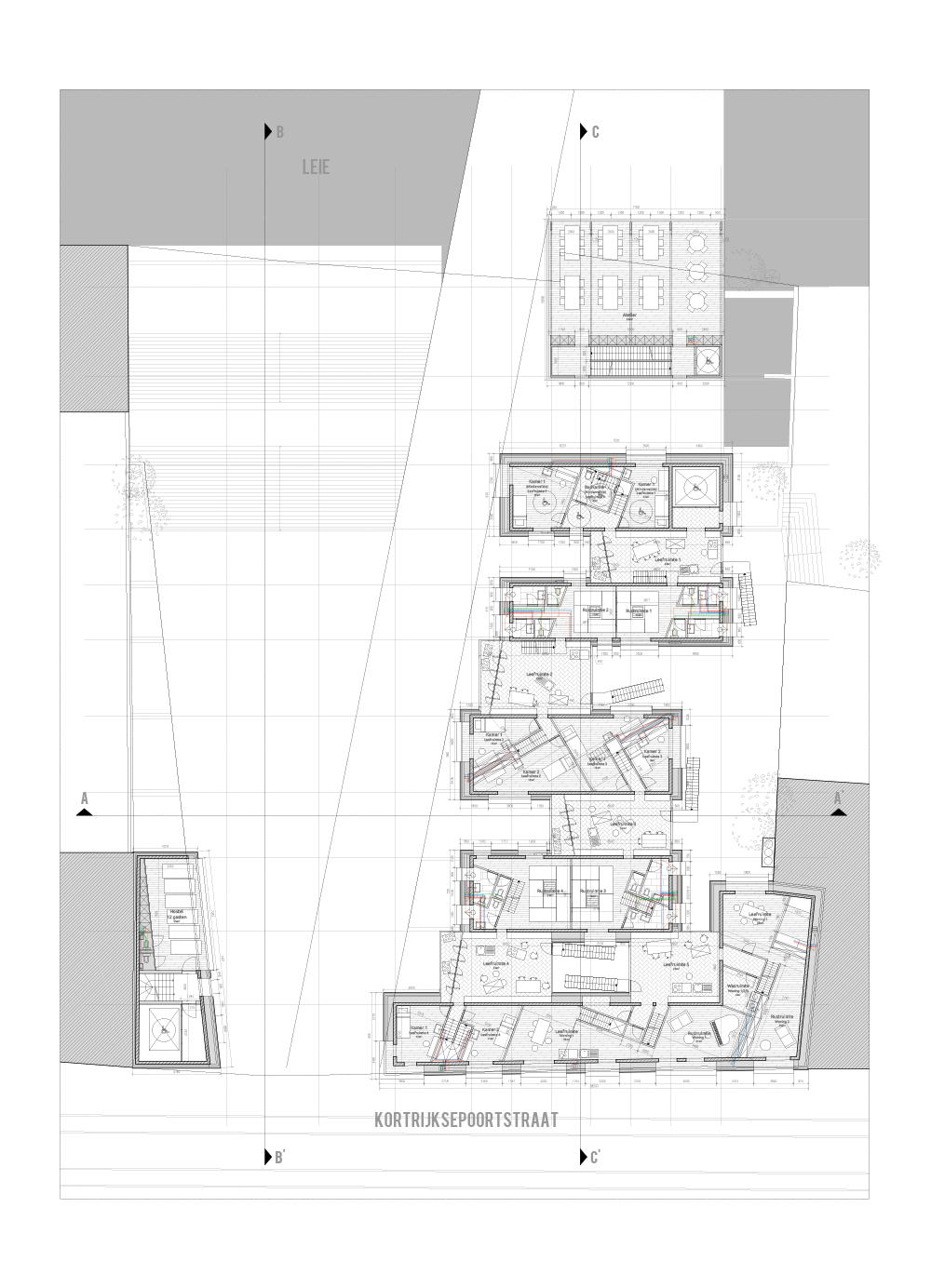
The supporting facilities are mainly located on the public ground floor, and underneath, in the brick plinth of the project. Above this public layer are the more private spaces; apartments, and houses. A gradient in these living spaces, from the most basic, the hostel with its 2m private bed, until the house, with most utilities as private, gives the possibility to every Ghent user to choose its appropriate private space acoording to his needs. Every living space uses the supporting facilities to some extent, making small but qualitative private rooms possible, ensuring a great housing density.

On the elevation above, the constructive principles are visible.

The bottom 2 floors, with public functions, comprise the plinth. This solid brick plinth utilizes the same properties of brick as the Hollebeke project; immense thermal capacity and excellent humidity and temperature control. This brick also calls for the appropriate construction; thick walls and brick vaults. Above the public street level (the street is visible on the right) construction is somewhat different; brick towers are built for strength and the same properties of thermal capacity and humidity control, as well as acoustic insulation. Around these towers an extra skin is responsible for the other necessary properties; thermal insulation and protection from rain and wind. the space between these 2 walls is used for running utilities, extra closet space, and extra room space in front of the big windows, offering a frame of the view inside. These towers hold the private rooms, apartments and houses. In between these you have the shared living spaces, with lots of glass for maximum daylight, and enjoying the second-hand heat of the brick towers around it. In summer these double walls offer a cool airflow, from below, up to the chimney, that cools the entire structure.

Every private room has a unique layout.

Slightly rotating the interior divisions in the towers creates diverse private spaces. These dividers are prefabricated wooden forms that include the stairs, doorways, desks, closets, washing basin, electricity, utilities... Encorporating everything inside these forms gives ultimate freedom in dividing the interior spaces. This way it is possible to leave the brick walls completely bare, fully utilising the positive properties, such as humidity and temperature control. These prefabricted forms allow to change the building in a non-destructive way, ensuring a durable and sustainable building for the changing city. Some examples on the left showcase these private rooms, with the brick tower wall and framed window, the double layered outer skin, the wooden form that houses all facilities, and the unique shape of each room.

More projects

Ieper, Belgium

j.huysentruyt@gmail.com